Executive Townhomes for sale in Kanata-Stittsville, Ottawa
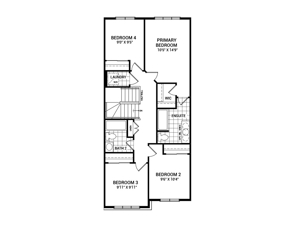
There’s more room for family in the Lawrence Executive Townhome. Discover a bright, open-concept main floor, where you’re all connected – from the spacious kitchen to the adjoined dining and living space. The rec room in the finished basement provides even more space, while an upgrade is available to add a bedroom and 3-piece bathroom. The second floor features 4 bedrooms, 2 bathrooms and the laundry room. The primary bedroom includes a 3-piece ensuite and a spacious walk-in closet.
Lawrence
C
Some more details on the Lawrence
- Finished Basement Rec Room W/3-Piece Bathroom
- Minto Smarter Home Starter Package W/ecobee
- Hardwood Flooring on Main Floor (except in tiled areas)
- Quartz Countertop in Kitchen
- $5,000 Design Centre Bonus
- 6 Appliances
- 9' Ceilings on Main Floor
- Smooth Ceilings Throughout
- Ensuite tub converted to 5-foot shower with prefab base
- Optional Main and Second Floor Railing
- Pot-lights in Kitchen, Living / Dining Room, and Second Floor Hallway
Floorplans
Disclaimer
The information contained and displayed on this website is solely for the estimation of approximate mortgage terms. It may not necessarily reflect the actual amounts, and terms of a mortgage. Always use a mortgage broker or lender to determine and obtain the specific payment amount eligibility. Minto and its affiliated companies assume no liability for the accuracy of the information displayed on this page. To qualify for a mortgage loan at a bank, you will need to pass a “stress test”. You will need to prove you can afford payments at a qualifying interest rate which is typically higher than the actual rate in your mortgage contract.
Disclaimer
The information contained and displayed on this website is solely for the estimation of approximate mortgage terms. It may not necessarily reflect the actual amounts, and terms of a mortgage. Always use a mortgage broker or lender to determine and obtain the specific payment amount eligibility. Minto and its affiliated companies assume no liability for the accuracy of the information displayed on this page. To qualify for a mortgage loan at a bank, you will need to pass a “stress test”. You will need to prove you can afford payments at a qualifying interest rate which is typically higher than the actual rate in your mortgage contract.
Executive Townhomes for sale in Kanata-Stittsville, Ottawa
There’s more room for family in the Lawrence Executive Townhome. Discover a bright, open-concept main floor, where you’re all connected – from the spacious kitchen to the adjoined dining and living space. The rec room in the finished basement provides even more space, while an upgrade is available to add a bedroom and 3-piece bathroom. The second floor features 4 bedrooms, 2 bathrooms and the laundry room. The primary bedroom includes a 3-piece ensuite and a spacious walk-in closet.
Similar Move In Ready Homes
5618 Hazeldean Rd, Stittsville
Kanata Sales Centre
380 Huntmar Drive
Kanata, ON K2S 1B9
Site Location:
5618 Hazeldean Rd.,
Stittsville, ON, K2S 1E7
Hours of Operation
Monday to Thursday: 12pm-8pm
Friday: 12pm-6pm
Weekends & Holidays: 11am-6pm
Click here to tour our Model Homes virtually.
All plans, dimensions and specifications are subject to change without notice. Actual usable floor space may vary from the stated floor area. Column locations, window locations and size may vary and are subject to change without notice. Renderings are artist’s concept and will change if required by site conditions. Plans, specifications and materials are subject to availability, substitution, modification without notice at sole discretion of Minto Communities Inc. E. & O.E. May 2025.
To view this community's Home Construction Regulation Authority (HCRA) license, click here.