Executive Townhomes for sale in Kanata-Stittsville, Ottawa
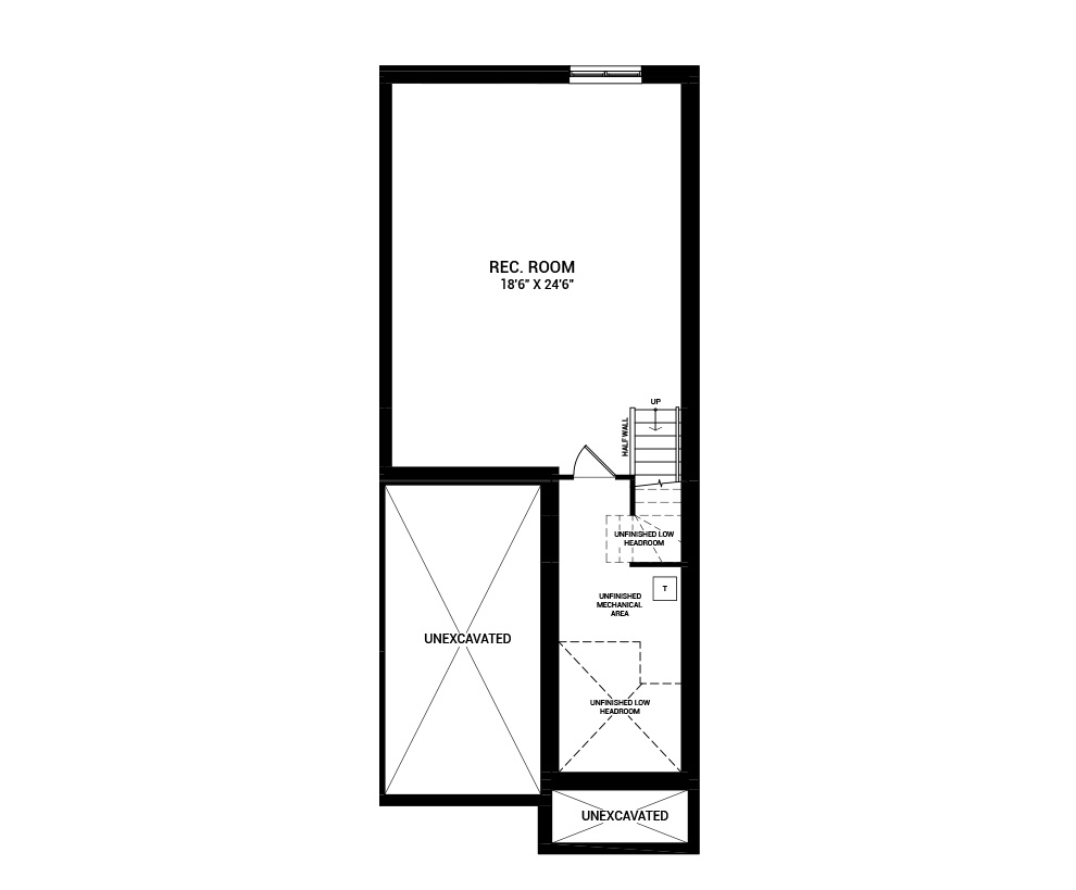
Find more room for family in the 4-bedroom Rockcliffe Executive Townhome. You’re all connected on the open-concept main floor, from the dazzling kitchen to the formal dining room and bright living room. Find more space in the finished basement rec room, with the option to upgrade the space with bedroom and 3-piece bathroom, perfect for multi-generational living, or for the growing family, or when a guest stops by! The second floor features all 4 bedrooms, 2 bathrooms and the laundry room, while the primary bedroom includes a 3-piece ensuite and a spacious walk-in closet.
Rockcliffe - 4 Bed
A
Some more details on the Rockcliffe - 4 Bed
- 6 Appliances
- Hardwood Flooring in Kitchen and Living / Dining Room
- 9' Ceilings on Main Floor
- Smooth Ceilings Throughout
- Quartz Countertops in Kitchen, Ensuite, and Bath 2
- Designer Selected Upgraded Floor Tile in Ensuite
- Finished Basement Rec Room
- Minto Smarter Home Starter Package w/ecobee
- 5' Shower with Prefab Base in the Ensuite
- Optional Main and Second Floor Railings
- Pot Lights in the Kitchen, Living Room and 2nd Level Hallway
Floorplans
Renderings are artist's concept only. Plans, dimensions, material availability and specifications are subject to change without notice. Features displayed may include upgrade options. E. & O.E. March 2023.
Disclaimer
The information contained and displayed on this website is solely for the estimation of approximate mortgage terms. It may not necessarily reflect the actual amounts, and terms of a mortgage. Always use a mortgage broker or lender to determine and obtain the specific payment amount eligibility. Minto and its affiliated companies assume no liability for the accuracy of the information displayed on this page. To qualify for a mortgage loan at a bank, you will need to pass a “stress test”. You will need to prove you can afford payments at a qualifying interest rate which is typically higher than the actual rate in your mortgage contract.
Disclaimer
The information contained and displayed on this website is solely for the estimation of approximate mortgage terms. It may not necessarily reflect the actual amounts, and terms of a mortgage. Always use a mortgage broker or lender to determine and obtain the specific payment amount eligibility. Minto and its affiliated companies assume no liability for the accuracy of the information displayed on this page. To qualify for a mortgage loan at a bank, you will need to pass a “stress test”. You will need to prove you can afford payments at a qualifying interest rate which is typically higher than the actual rate in your mortgage contract.
Executive Townhomes for sale in Kanata-Stittsville, Ottawa
Find more room for family in the 4-bedroom Rockcliffe Executive Townhome. You’re all connected on the open-concept main floor, from the dazzling kitchen to the formal dining room and bright living room. Find more space in the finished basement rec room, with the option to upgrade the space with bedroom and 3-piece bathroom, perfect for multi-generational living, or for the growing family, or when a guest stops by! The second floor features all 4 bedrooms, 2 bathrooms and the laundry room, while the primary bedroom includes a 3-piece ensuite and a spacious walk-in closet.
Similar Move In Ready Homes
5618 Hazeldean Rd, Stittsville
Kanata Sales Centre
380 Huntmar Drive
Kanata, ON K2S 1B9
Site Location:
5618 Hazeldean Rd.,
Stittsville, ON, K2S 1E7
Hours of Operation
Monday to Thursday: 12pm-8pm
Friday: 12pm-6pm
Weekends & Holidays: 11am-6pm
Click here to tour our Model Homes virtually.
All plans, dimensions and specifications are subject to change without notice. Actual usable floor space may vary from the stated floor area. Column locations, window locations and size may vary and are subject to change without notice. Renderings are artist’s concept and will change if required by site conditions. Plans, specifications and materials are subject to availability, substitution, modification without notice at sole discretion of Minto Communities Inc. E. & O.E. May 2025.
To view this community's Home Construction Regulation Authority (HCRA) license, click here.