show homes
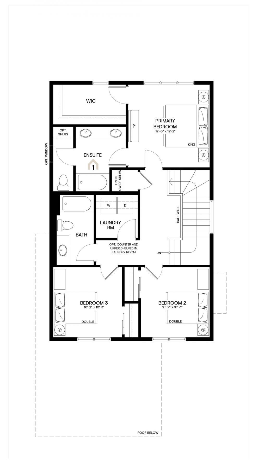
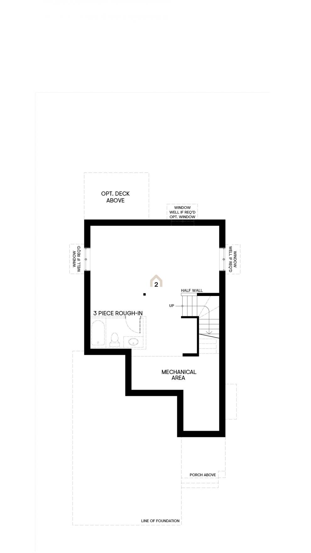
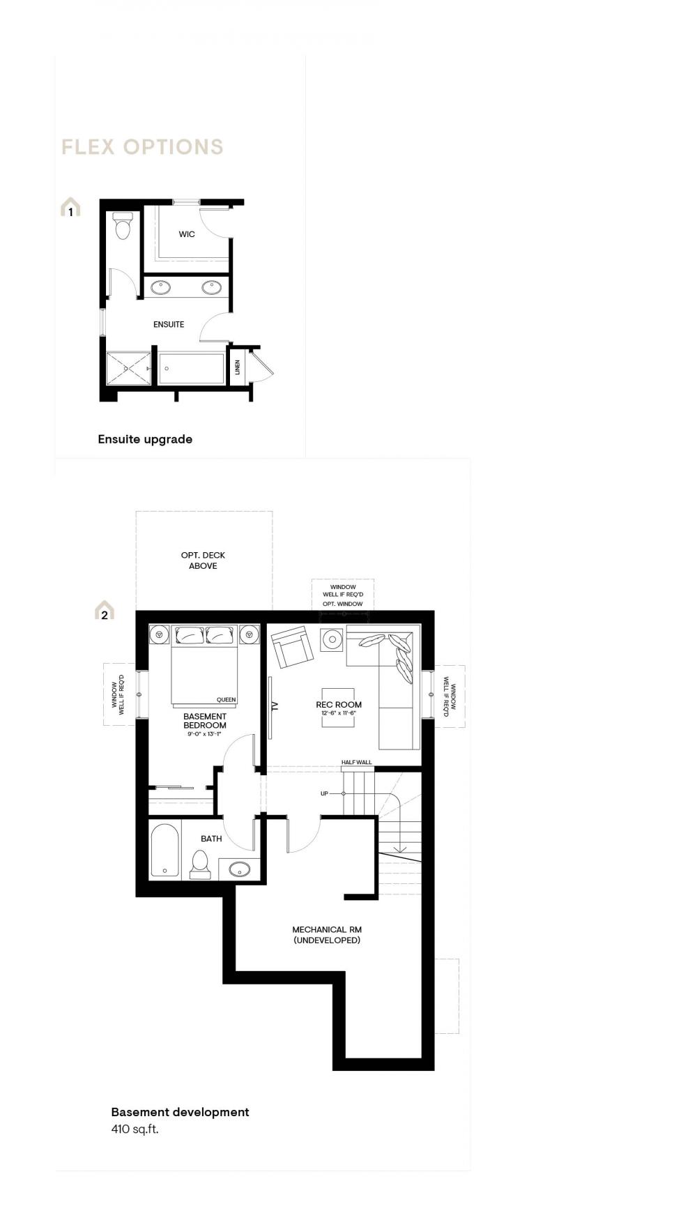
With spacious layouts designed for comfort and functionality, each home embodies contemporary living. Residents can enjoy the serene surroundings and vibrant community atmosphere, while still being within reach of urban amenities and major transportation routes.
find on google maps
