Sage 6C New Townhomes in Unionville | Park and Main
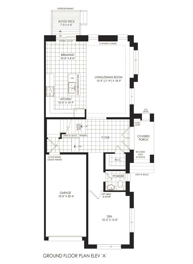
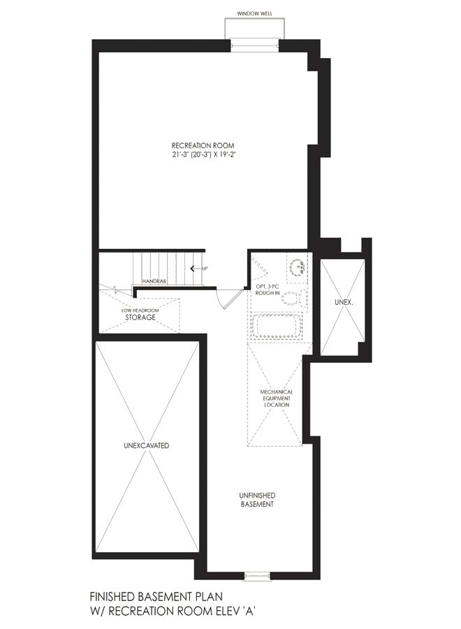
4 Bedrooms | 2 Bathrooms | 1 Half Bath | 2,524 square feet | Starting from $1,829,900
Elevation
Floor Plans
Disclaimer
The information contained and displayed on this website is solely for the estimation of approximate mortgage terms. It may not necessarily reflect the actual amounts, and terms of a mortgage. Always use a mortgage broker or lender to determine and obtain the specific payment amount eligibility. Minto and its affiliated companies assume no liability for the accuracy of the information displayed on this page. To qualify for a mortgage loan at a bank, you will need to pass a “stress test”. You will need to prove you can afford payments at a qualifying interest rate which is typically higher than the actual rate in your mortgage contract.
1 Anna Russell Way, Unionville
Park & Main Sales Centre
9 Station Lane,
Unionville, Ontario
Site Location
1 Anna Russell Way,
Unionville, ON, L3R 3X3
Hours of Operation
All plans, dimensions and specifications are subject to change without notice. Actual usable floor space may vary from the stated floor area. Column locations, window locations and size may vary and are subject to change without notice. Renderings are artist’s concept and will change if required by site conditions. Plans, specifications and materials are subject to availability, substitution, modification without notice at sole discretion of Minto Communities Inc. E. & O.E. May 2025.
To view this community's Home Construction Regulation Authority (HCRA) license, click here.