Simcoe 4-Bed New Townhomes in Kanata | Brookline
4 Bedrooms | 2+ Bathrooms | 1 Half Bath | 2,200 square feet | Starting from $694,900
Elevation
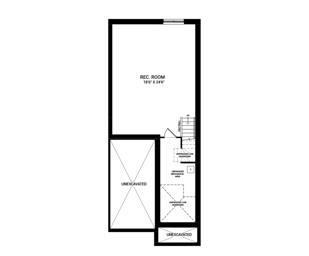
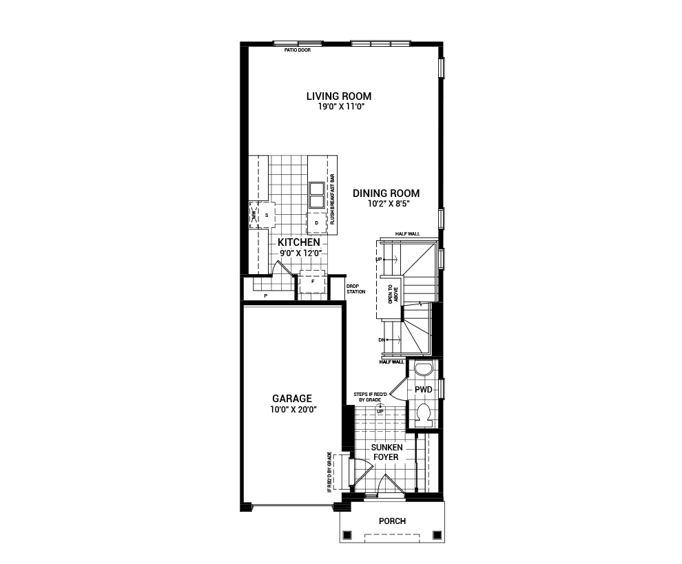
Floorplans
Some more details on the Simcoe - 4 Bed
- $6,000 Design Centre Bonus or $4,000 off base price
- 6 Appliances
- 9' Smooth Ceilings on Main Floor
- Hardwood Flooring on Main Floor (excludes tiled areas)
- Quartz Countertop in Kitchen
- Finished Basement Rec. Room
- Minto Smarter Home Starter Package
- Pot lights in Main Hallway
Disclaimer
The information contained and displayed on this website is solely for the estimation of approximate mortgage terms. It may not necessarily reflect the actual amounts, and terms of a mortgage. Always use a mortgage broker or lender to determine and obtain the specific payment amount eligibility. Minto and its affiliated companies assume no liability for the accuracy of the information displayed on this page. To qualify for a mortgage loan at a bank, you will need to pass a “stress test”. You will need to prove you can afford payments at a qualifying interest rate which is typically higher than the actual rate in your mortgage contract.
Disclaimer
The information contained and displayed on this website is solely for the estimation of approximate mortgage terms. It may not necessarily reflect the actual amounts, and terms of a mortgage. Always use a mortgage broker or lender to determine and obtain the specific payment amount eligibility. Minto and its affiliated companies assume no liability for the accuracy of the information displayed on this page. To qualify for a mortgage loan at a bank, you will need to pass a “stress test”. You will need to prove you can afford payments at a qualifying interest rate which is typically higher than the actual rate in your mortgage contract.
Executive Townhomes for sale in Kanata, Ottawa
There’s room for more in the 4-bedroom Simcoe Executive Townhome, where open-concept living brings your family together. The main floor is the perfect spot to gather, with a gourmet kitchen featuring a large pantry, a formal dining space and naturally-lit living room. The second floor includes all 4 bedrooms, 2 bathrooms and a laundry room, while the primary bedroom offers a 3-piece ensuite and a spacious walk-in closet. Need more space for multi-generational living or for a growing family? The finished basement rec room offers an upgraded layout to include a fifth bedroom and an additional 3-piece bathroom.
March Road in Kanata North
Hours of Operation
Monday to Thursday: 12pm-8pm
Friday: 12pm-6pm
Weekends & Holidays: 11am-6pm
Click here to tour our Model Homes virtually.
All plans, dimensions and specifications are subject to change without notice. Actual usable floor space may vary from the stated floor area. Column locations, window locations and size may vary and are subject to change without notice. Renderings are artist’s concept and will change if required by site conditions. Plans, specifications and materials are subject to availability, substitution, modification without notice at sole discretion of Minto Communities Inc. E. & O.E. May 2025.