Brighton 4-Bedroom New Single Family Homes in Stittsville | Abbott's Run
4 Bedrooms | 2+ Bathrooms | 2,389 square feet | Starting from $782,800
Elevation
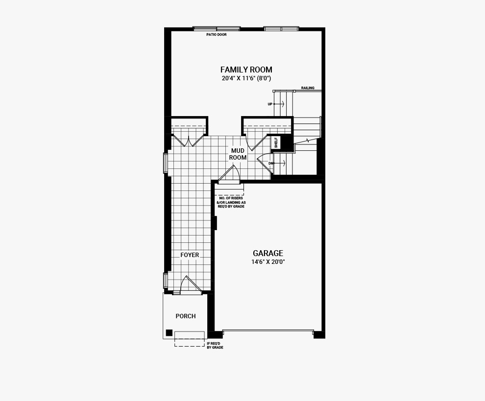
Floorplans
Some more details on the Brighton - 4 Bedroom
- $10,000 Design Centre Bonus
- 9' Ceilings on Second Floor
- Hardwood Flooring on Second Floor (excludes Powder Room)
- Quartz Countertop in Kitchen
- Natural Gas Fireplace
- Smooth Ceilings on First and Second Floor
- Minto Smarter Home Starter Package w/ecobee
The Brighton 4 bedroom is available as a Move-In-Soon home featuring thousands of dollars worth of designer selected upgrades. Click here to learn more about this home, and other homes featuring finishes carefully selected by our Design Centre team.
Disclaimer
The information contained and displayed on this website is solely for the estimation of approximate mortgage terms. It may not necessarily reflect the actual amounts, and terms of a mortgage. Always use a mortgage broker or lender to determine and obtain the specific payment amount eligibility. Minto and its affiliated companies assume no liability for the accuracy of the information displayed on this page. To qualify for a mortgage loan at a bank, you will need to pass a “stress test”. You will need to prove you can afford payments at a qualifying interest rate which is typically higher than the actual rate in your mortgage contract.
Disclaimer
The information contained and displayed on this website is solely for the estimation of approximate mortgage terms. It may not necessarily reflect the actual amounts, and terms of a mortgage. Always use a mortgage broker or lender to determine and obtain the specific payment amount eligibility. Minto and its affiliated companies assume no liability for the accuracy of the information displayed on this page. To qualify for a mortgage loan at a bank, you will need to pass a “stress test”. You will need to prove you can afford payments at a qualifying interest rate which is typically higher than the actual rate in your mortgage contract.
Single Family Homes for sale in Kanata-Stittsville, Ottawa
A new kind of detached home for new and growing families. The Brighton Single Family Home delivers more interior square footage with a spacious 3-storey floorplan. The tiled foyer leads to an impressive family room on the first floor, and the main living area is found on the open-concept second floor. The dining room is centred in the space, with the living room to one side with a fireplace, the kitchen, dining room, and den on the other. The third floor features 4 bedrooms, 2 bathrooms and the laundry room. An ensuite is included in the primary bedroom, and an unfinished basement gives you more space when you need it, or upgrade to a finished basement to provide even more space for your growing family!
Similar Move In Ready Homes
5618 Hazeldean Rd, Stittsville
Kanata Sales Centre
380 Huntmar Drive
Kanata, ON K2S 1B9
Site Location:
5618 Hazeldean Rd.,
Stittsville, ON, K2S 1E7
Hours of Operation
Monday to Thursday: 12pm-8pm
Friday: 12pm-6pm
Weekends & Holidays: 11am-6pm
Click here to tour our Model Homes virtually.
All plans, dimensions and specifications are subject to change without notice. Actual usable floor space may vary from the stated floor area. Column locations, window locations and size may vary and are subject to change without notice. Renderings are artist’s concept and will change if required by site conditions. Plans, specifications and materials are subject to availability, substitution, modification without notice at sole discretion of Minto Communities Inc. E. & O.E. May 2025.
To view this community's Home Construction Regulation Authority (HCRA) license, click here.